En 2019, les APHP lancent un concours pour l’architecture du projet de construction d’un hôpital à Saint-Ouen-sur-Seine. Ce nouvel hôpital regroupera les hôpitaux Bichat et Beaujeon au sein du Campus hospitalo-universitaire grand Paris-Nord. Le groupement de l’agence Architecture Studio, le bureau d’étude Artelia, Agence Patrick Jouin a été sélectionné pour répondre à ce concours en réalisant un projet architectural complet répondant au programme technique dédié. J’ai travaillé au sein de l’agence Patrick Jouin dans l’équipe du chef de projet Design et Architecture d’intérieur Henry Gagnaire.
Mission de 42 jours sur 3,5 mois.
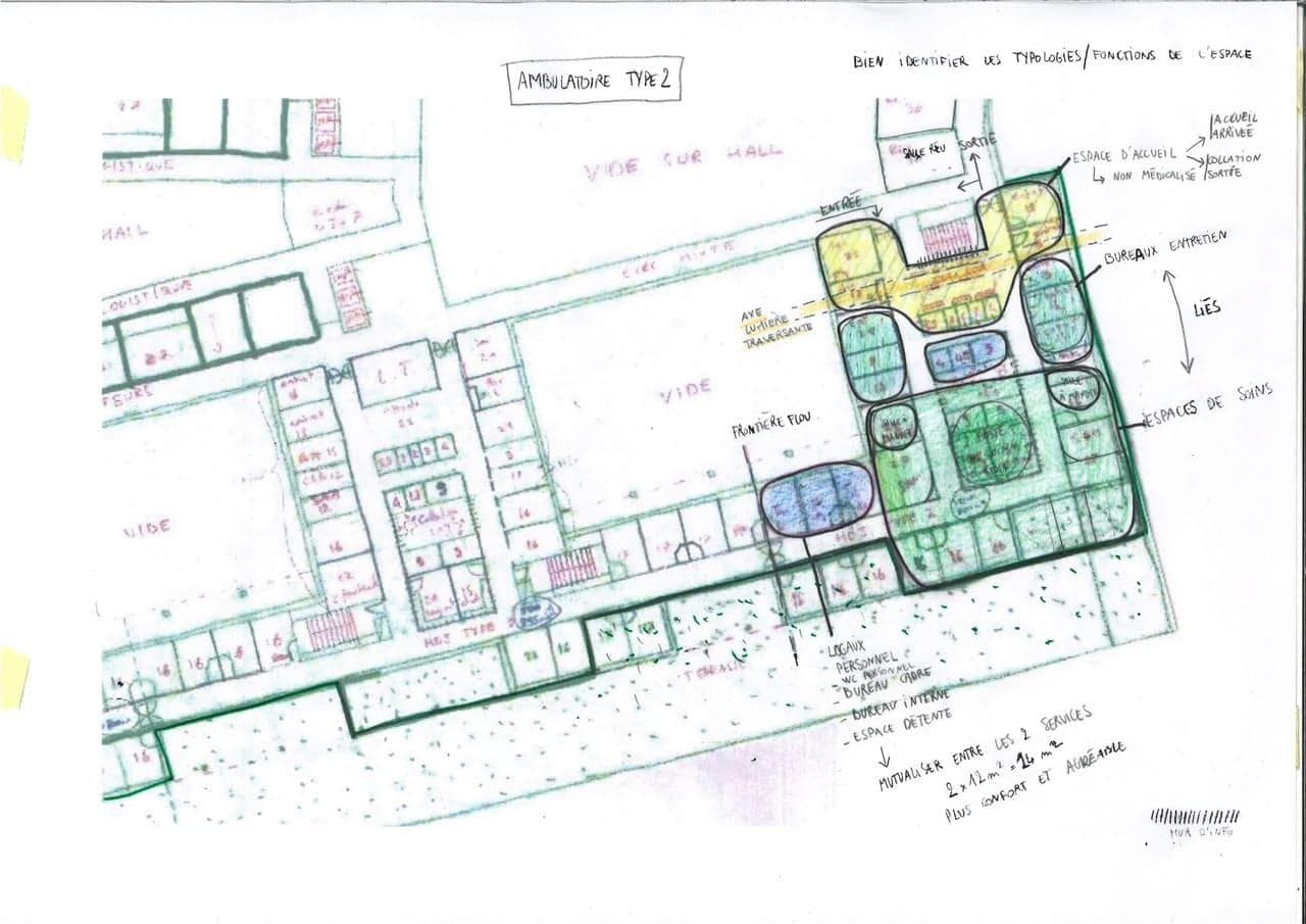
Enjeux de la mission :
Décoder le programme technique pour l’usage des espaces intérieurs.
Comprendre les enjeux du virage ambulatoire.
Faire de la veille sur les nouveaux usages dans les hôpitaux.
Analyser le programme en fonction des parcours de soin.
Percevoir les subtilités de différences de parcours de soin en fonction des « types » de services.
Penser l’expérience du patient et de ses proches en relation avec ses vulnérabilités.
Penser l’expérience des soignants et médecins dans un programme qui imposent des usages inédits ( bureaux tertiaires en open space pour les médecins, cantine partagée avec les patients… ).
Créer des parcours patients / scénarios d’usages pour guider la conception des espaces.
Penser des frontières poreuses entre les services.
Ancrer l’hospitalité dans l’espace.
Fluidifier les parcours des usages, tant pour les patients que pour le corps médical et technique.
Travail réalisé et livré :
Scénarios d’usages spécialisés.
Parcours patients, notamment, dans les services ambulatoires innovants.
Dossier de veille et de références.
Production d’images illustrant des concepts ou des axes esthétiques.
Travail en collaboration avec les architectes pour la répartition des espaces.
Écriture des textes explicitant le projet d’architecture d’intérieur.
Participation à la construction collective d’un projet global et cohérent répondant aux enjeux politiques et écologiques actuels.